In Cothen hebben wij een arbeidsmigrantenwoning mogen ontwikkelen.
Bij dit project waren wij betrokken bij de ontwerpfase en hebben wij tekeningen en constructieberekeningen gemaakt voor de opdrachtgever.
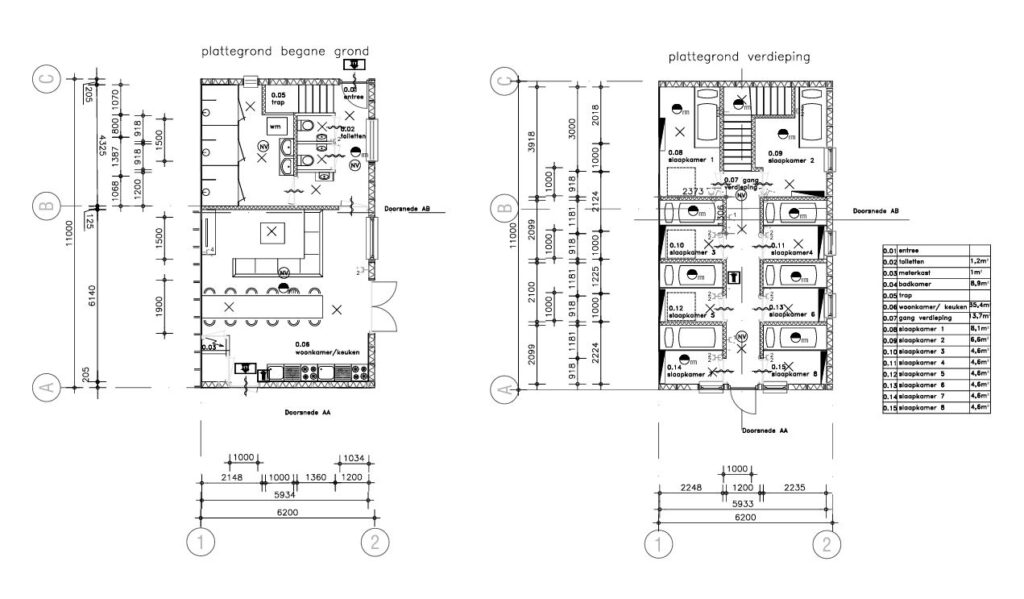
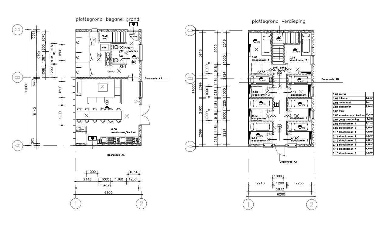
De woning bied plaats voor 16 bewoners en bevat 8 slaapkamers een grote woonkamer met keuken. 2 toiletten en een grote badkamer met 3 douche ruimtes.
Tijdens de bouw moest de bestaande huisvesting blijven staan dit maakte het complexer om het nieuwe gebouw te plaatsen. Echter stond deze uitdaging ons niet in de weg en zijn wij en de opdrachtgever zeer tevreden met het resultaat.















